Garret T2x Flange interchangability?
Gday,
Just found the dxf files for gt2860 and 2871, i do not have software which can view these and make measurements to I just wanted to know if the outlet and inlet flanges on the exhaust housing were the same, and were the same as a T25.
Source http://www.turbohelps.com
I have an S13 T25 which Id like some flanges for.
Thankyou,
Dann
Just found the dxf files for gt2860 and 2871, i do not have software which can view these and make measurements to I just wanted to know if the outlet and inlet flanges on the exhaust housing were the same, and were the same as a T25.
Source http://www.turbohelps.com
I have an S13 T25 which Id like some flanges for.
Thankyou,
Dann

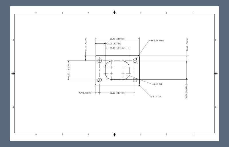
I will do the other one now. Sorry its so messy, trying to do it quick while no one is around, lol.
What do you want to see for the other one? I was just going to give you a few center to center dims from holes so you can easily measure. wont be something you could use to make the part.
If you do to the Garrett website they have drawings for all the turbos in .pdf form.
www.turbobygarrett.com
www.turbobygarrett.com
^^ damn you. Oh well this is keeping me from doing actual work.

let me know if you need anything else. I randomly gave you center to centers. hopefully you can measure enough.

let me know if you need anything else. I randomly gave you center to centers. hopefully you can measure enough.
My god, that is sweet.
I have no idea how you can get those measurements into a pc program, trying to learn google sketchup... havent done any cad stuff since highschool.
Thanks heaps.
Dann
I have no idea how you can get those measurements into a pc program, trying to learn google sketchup... havent done any cad stuff since highschool.
Thanks heaps.
Dann
DXF is an AutoCad format. I have both autocad and Inventor at work but I refuse to work in Autocad. I pulled the files into inventor and then detailed them in that program.
I am slightly embarrassed about how I detailed the last part, but I know you wanted it as a reference only. Oh and the first part is missing a dimension for the total height of the part, sry.
EDIT: I also forgot to give you mm & inches in the second part, sry.
I am slightly embarrassed about how I detailed the last part, but I know you wanted it as a reference only. Oh and the first part is missing a dimension for the total height of the part, sry.
EDIT: I also forgot to give you mm & inches in the second part, sry.
Nah its great thanks. Im not sure I can get autocad for free, nor am I sure that the learning curves on autocad or solidworks etc would be worth it for what I want to be able to do.
Learning sketchup for the fun of it now.
id like to be able to get flanges laser/water cut for me etc.
Dann
Learning sketchup for the fun of it now.
id like to be able to get flanges laser/water cut for me etc.
Dann
Thread
Thread Starter
Forum
Replies
Last Post
StratoBlue1109
Miata parts for sale/trade
21
Sep 30, 2018 01:09 PM
stoves
Suspension, Brakes, Drivetrain
5
Apr 21, 2016 03:00 PM






