My VVT swap attempt - little different because 1,6 1996 Euro car
Thread Starter
Elite Member
Joined: Mar 2006
Posts: 1,574
Total Cats: 106
From: Schwarzenberg, Germany
I have that here and already tried a sketch in page 1 on what I have to do...

My problem is that there is only a wire going from the igniter to the dash - as I will throw out the igniter there will be nothing firing the tach in dash. TO the igniter there are only two wires going from the ECU/MS - which I will both need as trigger for my coils. I thought one of the other 1,6 swapper could tell me their solution...
My problem is that there is only a wire going from the igniter to the dash - as I will throw out the igniter there will be nothing firing the tach in dash. TO the igniter there are only two wires going from the ECU/MS - which I will both need as trigger for my coils. I thought one of the other 1,6 swapper could tell me their solution...
Thread Starter
Elite Member
Joined: Mar 2006
Posts: 1,574
Total Cats: 106
From: Schwarzenberg, Germany
By B/W wire you mean the Nr. 5 B/W from your picture at the Toyota COPs thread?

That wire is not existent on that Euro past '93 MX-5 1.6...
See here:

So I think I will make a new wire to either the igniter or directly to the tach.
That wire is not existent on that Euro past '93 MX-5 1.6...

See here:

So I think I will make a new wire to either the igniter or directly to the tach.
Thread Starter
Elite Member
Joined: Mar 2006
Posts: 1,574
Total Cats: 106
From: Schwarzenberg, Germany
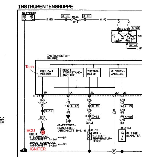
Here is the cutout from the Factory wiring diagram for the car:
Instruments:
Igniter:

You can clearly see, that the tach signal comes from the igniter...
Thread Starter
Elite Member
Joined: Mar 2006
Posts: 1,574
Total Cats: 106
From: Schwarzenberg, Germany

The Y/L is going from the igniter to the dash/diagnostic connector.
looks like it. his diagram says it should be blue, but that doesn't look like a blue wire and i almost make out a white stripe right where it's going into the connector.
what is the blue wire going to the kraffstoff pumpen relay supposed to be?
what is the blue wire going to the kraffstoff pumpen relay supposed to be?
Thread Starter
Elite Member
Joined: Mar 2006
Posts: 1,574
Total Cats: 106
From: Schwarzenberg, Germany
**** it.. this ought to be a "L" aka blue wire but it is indeed a B/W wire
I cleaned it a bit:

Now I have to see if there is a wire at 2I at the ECU because that would be the spot for the B/W wire at the 90-93 1,6 ECUs.
I cleaned it a bit:

Now I have to see if there is a wire at 2I at the ECU because that would be the spot for the B/W wire at the 90-93 1,6 ECUs.
Also just see if you can check continuity between that pin on the plug and the b/w pin at either the ECU or gauge cluster to see if it is the correct one.







