Motor dies when car in gear
Thread Starter
Elite Member
iTrader: (17)
Joined: Aug 2007
Posts: 2,954
Total Cats: 184
From: Knoxville, TN
I was trying to eliminate some of the excess wiring on the car and clean up the engine bay. Well, apparently I eliminated one too many. The car cranks and runs fine, as soon as you put the car in gear the motor dies (the clutch has no affect, but motor dies as soon as tranny goes into any gear).
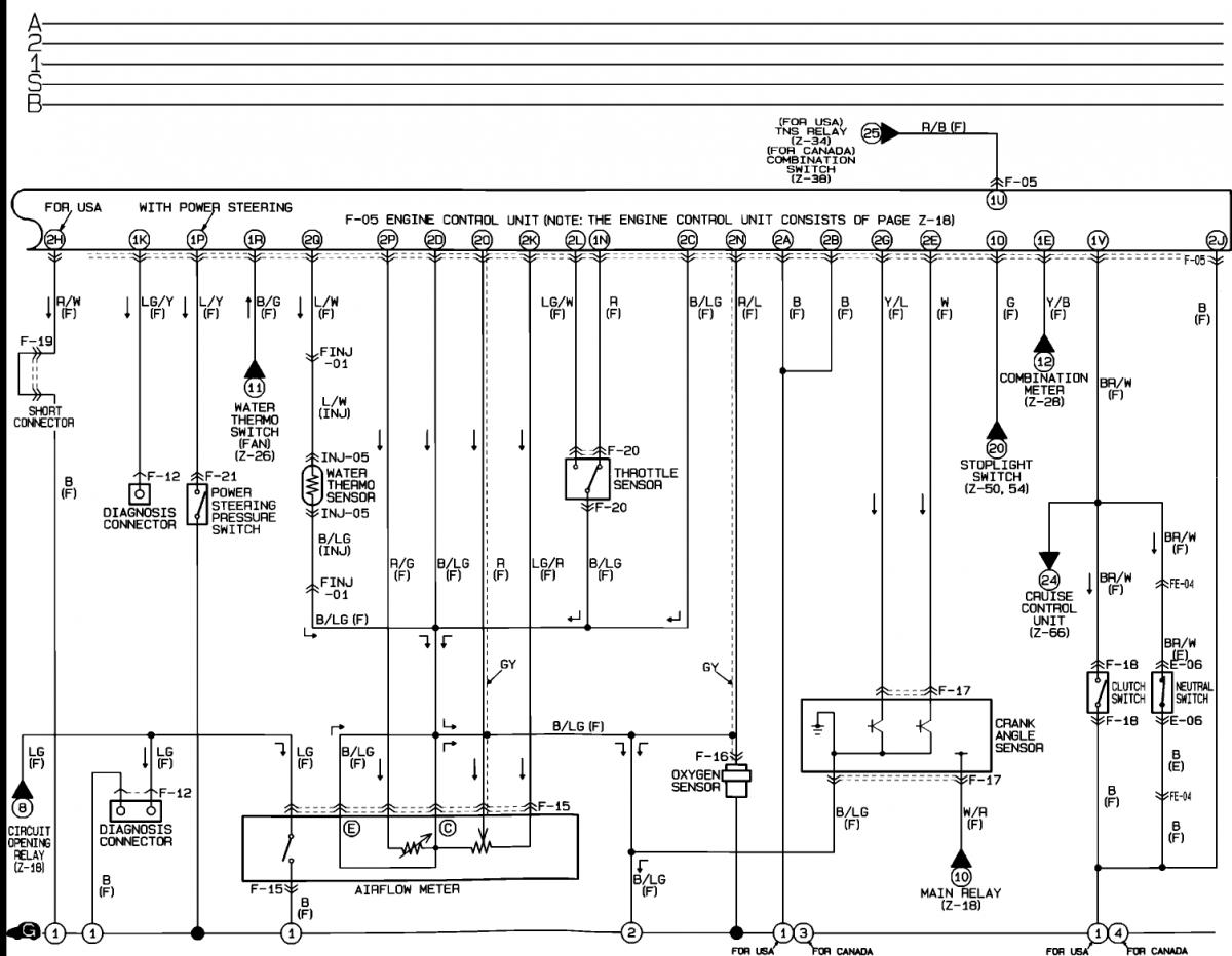
It looks like there's a transmission control module wire that could be a possible culprit but that appears to be wired for cruise control, which my car never had and it didn't seem to be connected to anything (which is why I cut it). Car is a '90, if that matters.
Maybe this is a long shot, but anybody have an idea what I might have screwed up? This could be a very long diagnosis process. *stupid, stupid stupid*
It looks like there's a transmission control module wire that could be a possible culprit but that appears to be wired for cruise control, which my car never had and it didn't seem to be connected to anything (which is why I cut it). Car is a '90, if that matters.
Maybe this is a long shot, but anybody have an idea what I might have screwed up? This could be a very long diagnosis process. *stupid, stupid stupid*
Does it bog and then die or does it just cut off? Does it seem like there is a load being place on it like stalling it from not using the clutch correctly starting off?
Thread Starter
Elite Member
iTrader: (17)
Joined: Aug 2007
Posts: 2,954
Total Cats: 184
From: Knoxville, TN
Trying to answer questions... What I did was go through my engine bay and find "extra" wires. This includes what I thought was emissions junk, airbag sensors, headlight motor harnesses, etc. I unplugged stuff that didn't appear necessary, cranked the car up to test it out, then trimmed back as far as I could and taped everything off.
Then I get in the car, crank it up to go for a drive, put it in reverse to back out of the garage and it dies. When it dies it just cuts off, no bog. It doesn't seem like load it being put on the motor, it's just like you turned the key off.
I went through my Haynes manual and came across a "transmission control module" wire. The manual said it's black/green. I then tracked down the 1 wire that I cut that wasn't leading toward the ECU and it happened to be black/green. I have no idea if that's the one, but it led me to believe it may be. It's kind of late tonight so I don't want to get too far into working on it. It seems like it could be a lot of fun trying to rebuild all those harnesses.
Then I get in the car, crank it up to go for a drive, put it in reverse to back out of the garage and it dies. When it dies it just cuts off, no bog. It doesn't seem like load it being put on the motor, it's just like you turned the key off.
I went through my Haynes manual and came across a "transmission control module" wire. The manual said it's black/green. I then tracked down the 1 wire that I cut that wasn't leading toward the ECU and it happened to be black/green. I have no idea if that's the one, but it led me to believe it may be. It's kind of late tonight so I don't want to get too far into working on it. It seems like it could be a lot of fun trying to rebuild all those harnesses.
Senior Member
iTrader: (10)
Joined: Feb 2007
Posts: 1,274
Total Cats: 0
From: South Eastern Wisconsin
It more than likely has something to do with the harness that runs down into the transmission.. Again I am just assuming that it has to do something with the neutral switch. What did you do with the bare wire ends?
Thread Starter
Elite Member
iTrader: (17)
Joined: Aug 2007
Posts: 2,954
Total Cats: 184
From: Knoxville, TN
I checked for grounds but nothing was obviously out of place. Possibly a stupid question, but could eliminating the little "diagnostics" box cause this? I was told it wasn't needed and I cut it out. I taped off the bare wire ends individually so they shouldn't be exposed. I've started gradually putting things back together, starting with what seems to be the most likely cause.
Thanks for the tips guys, hopefully I can track this thing down. Life definitely needs a ctrl+z.
Thanks for the tips guys, hopefully I can track this thing down. Life definitely needs a ctrl+z.
I checked for grounds but nothing was obviously out of place. Possibly a stupid question, but could eliminating the little "diagnostics" box cause this? I was told it wasn't needed and I cut it out. I taped off the bare wire ends individually so they shouldn't be exposed. I've started gradually putting things back together, starting with what seems to be the most likely cause.
Thanks for the tips guys, hopefully I can track this thing down. Life definitely needs a ctrl+z.
Thanks for the tips guys, hopefully I can track this thing down. Life definitely needs a ctrl+z.
Thread Starter
Elite Member
iTrader: (17)
Joined: Aug 2007
Posts: 2,954
Total Cats: 184
From: Knoxville, TN
I wasn't aware megasquirt made use of any of the diagnostic box functions, that's pretty cool. I guess I'm an idiot for removing it, but your comment is still completely irrelevant to the question of whether removing it could be the source of the problem I'm having.
Thread Starter
Elite Member
iTrader: (17)
Joined: Aug 2007
Posts: 2,954
Total Cats: 184
From: Knoxville, TN
I will not be attempting to do that again.
i also tried to delete some wires :(( my car runs but as soon as i put it in gear it shuts off completly. Can you lead me on what color wire or what to do? Its my only car and now im stuck
I owe you a beer! It turned out to be a ground. I put everything I could back together but it still wouldn't work. I actually ended up pulling out the tranny today, pulling apart all the harnesses and tracing the wires from the tranny all the way back to the fuse box/ecu, none of which had been touched. Put the tranny back in and went through the harnesses again. Turned out to be a small wire ground wire that ran through the passenger side headlight harness. 
I will not be attempting to do that again.

I will not be attempting to do that again.

Hey everybody this is my first post here! So I recently installed MSPNP2 in my daily 95 and I am working out the kinks.
My problem is also with getting the car into gear and applying throttle. The car revs fine but upon releasing the clutch and applying throttle there is a jerking/stuttering effect and the car will ultimately die.
My problem is also with getting the car into gear and applying throttle. The car revs fine but upon releasing the clutch and applying throttle there is a jerking/stuttering effect and the car will ultimately die.
Thread
Thread Starter
Forum
Replies
Last Post
Savington
Suspension, Brakes, Drivetrain
14
Mar 16, 2010 07:48 AM






